Home
Overview
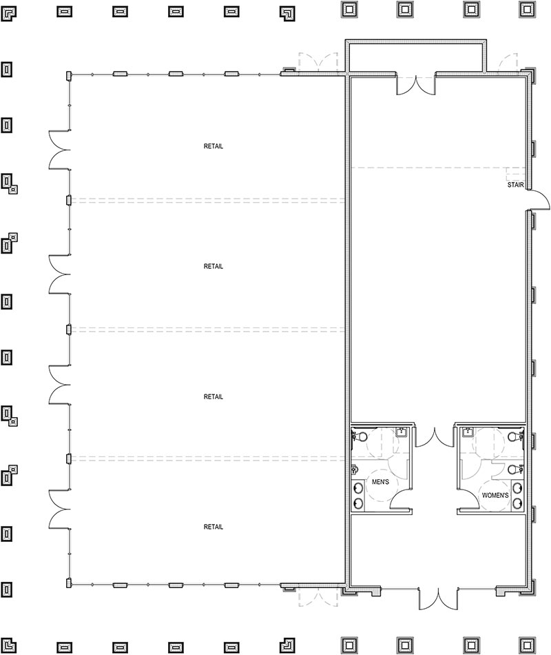
Available Space
Location
Contact Us
Available Space
» Retail One